Haus H

Bayerischer Wald

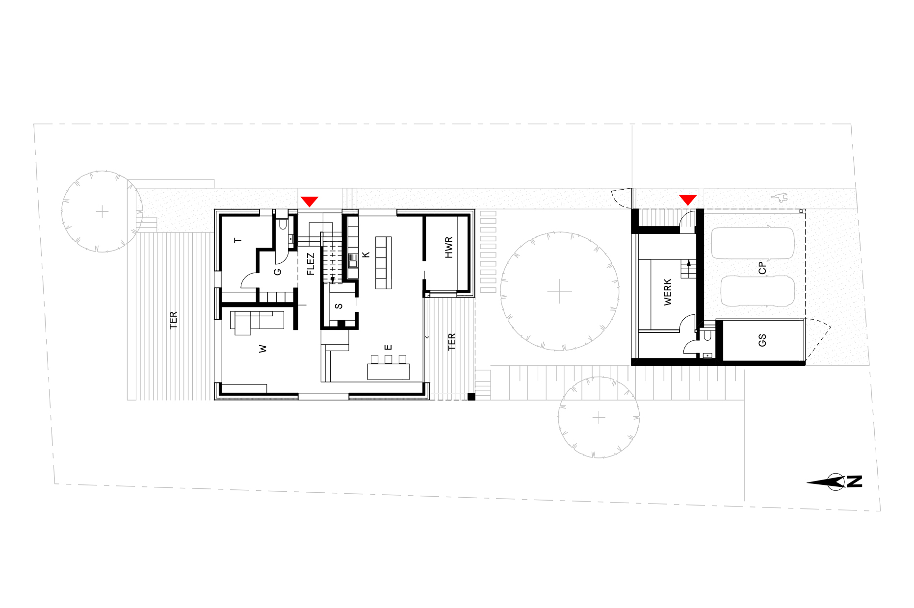
Ein Haus zum Wohnen, Arbeiten und Raum für die kreativen Momente. Weil die kleine Werkstatt ausreichend Höhe haben sollte wurde sie mit dem Carport an der Straße angeordnet. Das großzüge Nordfenster schafft optimales Licht zum Arbeiten und stellt den Bezug zum Haus her. Zwischen Werkstatt und Haus spannt sich ein kleiner  Garten der nach Süden zum Dorf hin ausgerichtet ist.

Status: LPH 1-4
Bauherr: privat
BGF: 320 m²
Jahr: 2020

Ein Haus zum Wohnen, Arbeiten und Raum für die kreativen Momente. Weil die kleine Werkstatt ausreichend Höhe haben sollte wurde sie mit dem Carport an der Straße angeordnet. Das großzüge Nordfenster schafft optimales Licht zum Arbeiten und stellt den Bezug zum Haus her. Zwischen Werkstatt und Haus spannt sich ein kleiner  Garten der nach Süden zum Dorf hin ausgerichtet ist.

 
 
Datenschutz
Impressum
 
Diese Seite verwendet Cookies. Nähere Informationen finden Sie in den Datenschutzbestimmungen. Ok, alles klar!