Altes Bauernhaus

Nirsching

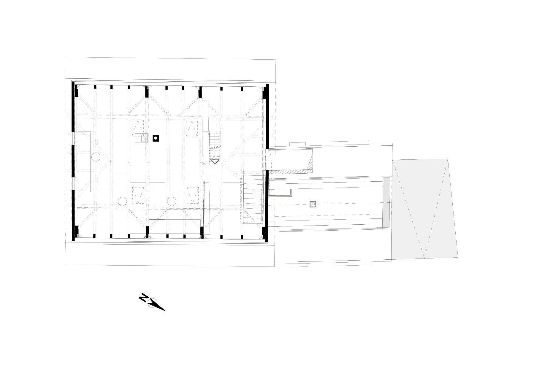
Die Maßnahme am Bauerhaus ist der zweite Bauabschnitt der Sanierung des historischen 3-Seit- Bauernhofes. Weil das Haus nahezu unverbaut war wurde auf unnötige Eingriffe verzichtet, um das Original nicht zu verändern. Selbst im Hinblick auf neue Wohnbedürfnisse funktioniert das Haus trotzdem wunderbar. Nur das Haupt sollte an der einen oder anderen Stelle manchmal ehrfurchtsvoll geneigt werden.

Fotos: studio 095 – Manuel T. Kreuzer

Status: realisiert
Bauherr: privat
BGF: 260 m²
Jahr: 2017–2021

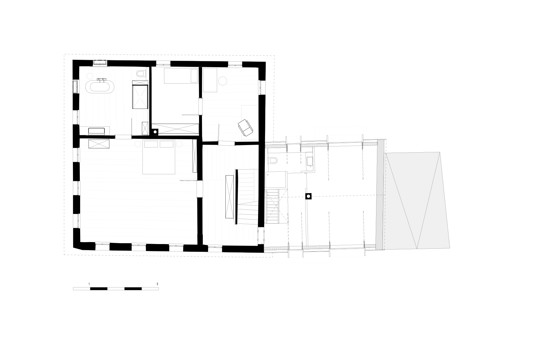
Die Maßnahme am Bauerhaus ist der zweite Bauabschnitt der Sanierung des historischen 3-Seit- Bauernhofes. Weil das Haus nahezu unverbaut war wurde auf unnötige Eingriffe verzichtet, um das Original nicht zu verändern. Selbst im Hinblick auf neue Wohnbedürfnisse funktioniert das Haus trotzdem wunderbar. Nur das Haupt sollte an der einen oder anderen Stelle manchmal ehrfurchtsvoll geneigt werden.

Fotos: studio 095 – Manuel T. Kreuzer

 
 
Datenschutz
Impressum
 
Diese Seite verwendet Cookies. Nähere Informationen finden Sie in den Datenschutzbestimmungen. Ok, alles klar!